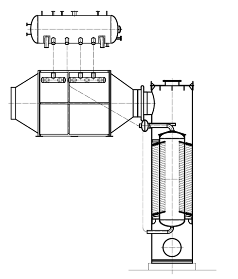
石化行业组合式烟气余热蒸汽发生器
组合蒸汽发生器装置广泛应用于石化行业高温烟气的降温器,同时产出中、低压饱和或过热蒸汽用于生产。.该装置在高温段采用管壳式蒸发器将温度降至350C左右进入后续的热管蒸发器,两组设备均与汽包自然循环,运行稳定可靠。性能特点布置灵活,合理利用空间,减少占地面积;使用寿命长,投资成本低;换热效果好,不易积灰。余热锅炉:余热锅炉是利用各种工业过程中的废气、废料或废液中含有的显热或其可燃物燃烧后产生热量的锅炉
锅炉介质:蒸汽/热水/高温导热油
工作压力:0.1- 3.8 Mpa
容 量:1 - 35 t/h
适用燃料:热烟气回收,各类企业设备排放的高温烟气回收利用
应用行业:医药、化工、轻工、纺织、建材、养殖、食品饮料、塑料泡沫、印刷洗涤、橡胶加工、造纸、木材加工、宾馆,酒店、制衣等。
产品介绍
组合蒸汽发生器装置广泛应用于石化行业高温烟气的降温器,同时产出中、低压饱和或过热蒸汽用于生产。.该装置在高温段采用管壳式蒸发器将温度降至350°C左右进入后续的热管蒸发器,两组设备均与汽包自然循环,运行稳定可靠。
性能特点
布置灵活,合理利用空间,减少占地面积;
使用寿命长,投资成本低;
换热效果好,不易积灰。

余热锅炉:
余热锅炉是利用各种工业过程中的废气、废料或废液中含有的显热或其可燃物燃烧后产生热量的锅炉。随着国家环保及节能减排政策日益严格,余热利用项目也更为广泛,我公司集多年设计、制造经验根据不同余热资源特性配套多种行业类型的余热锅炉……
甲醛、碳黑行业在生产过程中会排放出低热值可燃气体,我公司近年来根据不同气体成份与热值结合用户的具体需求,设计、制造了系列高效节能的余热锅炉,实际运行工况超预期。锅炉自动化成度高,性能稳定,运行安全可靠,具有可观的热回收效果。
一般工厂、印染、化工等行业在生产中会产生有毒有害气体,对环境危害极大,这些废气含有有机气体、硫化物、苯酚类有害气体,现阶段一般选用焚烧处理,处理采用直燃炉(TO炉)、蓄热燃烧炉(RTO)、催化燃烧炉(RCO)。焚烧后回收余热降温使之满足脱硫脱硝温度的要求,可实现环境保护和节约能源的双重作用。
焚硫炉出来的烟气及酸气燃烧炉出来的过程气温度较高,均不能直接应用于下一道工序,需要进行降温,且这些余热资源均有较强的腐蚀性。我公司专门设计了硫酸行业余热锅炉、解决了高温硫化腐蚀和低温的酸腐蚀,既满足了工艺需求,又能为客户节能创收。
碳质原料(无烟煤、石油焦等)在隔绝空气的条件下进行高温煅烧是炭素生产的第一道工序,煅烧过程中排出的高温烟气可以余热再利用,我公司根据余热资源实际情况配置了不同规格的余热蒸汽锅炉或余热有机热载体炉。运行情况良好节能减排效果显著,取得了极佳的经济效益。
原材料为采用业内龙头公司定扎钢板,确保原材料质量稳定可靠;有效减少了纵、环缝数量和封头拼接焊缝,筒体仅需要切掉毛边,无大块废料,提高了材料利用率并且保证了产品质量。
常规碳钢埋弧焊丝焊剂采用美国林肯焊丝焊剂,确保焊接质量稳定可靠,外观成型美观;
油漆分为国内和进口漆两种选择,喷漆后外观美观,油漆耐候性好。
1、激光下料,下料精度高,误差在0.05毫米以内,确保了焊接质量;换热器折流板可直接激光切割。
2、厚度≤10㎜不锈钢纵环焊缝采用等离子焊,单面焊双面成型,减少了焊丝用量,比埋弧焊减少了碳弧气刨工序,避免了渗碳,外观成型美观,热输入小,焊接质量好,射线检测合格率在99%以上
3、氩弧自动焊机,焊接质量好且稳定,焊缝外观成型美观。
产品制造分为下料、封头压制、卷筒、纵缝环缝焊接、组焊、机加工、热处理、水压试验、喷砂、喷漆等十几个工序组,每个工序都配备专业人员,并且工序内再做二次分工,有效提高工作效率和产品质量。
应用领域
供热行业案例
化工行业案例
酿酒行业案例
饲料行业案例